星藝裝飾案例丨90后獨居,做美食、玩音樂、看書運動,客廳承載了他 70% 的生活
2020-09-11 05:06:11
▎與業主初次見面 ▎
男主Danny,90后獨居,從事著銀行職業。看過大千繁華世界的他,也看到理想生活的樣子,隨性、自在、簡單,因此對于房子風格他偏愛適度留白的現代簡約風。記得第一次與業主見面,他身穿黑色單西,白色襯衫,笑容滿面,一個陽光大男孩的形象。設計師莫其創與男主交流后,便提煉出了本次方案的關鍵詞:空間氣質干凈、通透,與自己獨處,自由自在又美妙無比。
▎裝修前的環境狀況 ▎
裝修前,男主買下這套房齡和風格較為“復古”的老房。整個裝修風格像是回到了70-80年代的賓館模樣,色調暗沉,天花吊頂矮;廚房的格局與采光較弱,衛生間也很擁擠而且還要經過廚房才能進入衛生間;主次臥的整體空間壓抑,格局雜亂。
設計理念丨
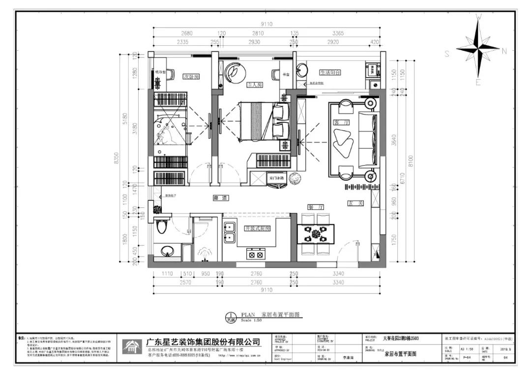
根據現場的情況,設計師的設計思路,先把客廳、餐廳、廚房這幾個公共空間開放出來,再把進衛生間要經過廚房弊端動線做調整,且擴大主臥和次臥的空間。因為房子是向西朝向,會比較曬比較熱,所以在現代簡約風格的基礎上,設計師考慮在客廳與主臥背景采用高級灰冷色調,調和了空間。

客 廳
LIVING ROOM
70%的生活節奏都發生在這里
客廳、餐廳、廚房在同一個空間,連成一體。廚房改為開放式的布局,闊然了整個布局,又因客廳的陽臺是朝西方向,且樓層高,沒有建筑物遮擋,讓自然光線灑滿整個屋子,直接引入廚房內。
軟裝則貫徹現代極簡主義的原則,
客廳沙發背景墻選擇帶有火烈鳥圖案的掛畫,呼應了擺放在客廳里那棵較大的植物,火烈鳥寓意自由熱烈、優雅活力,跳躍整個空間寧靜的氛圍。

男主Danny在客廳里做飯、彈吉他、看書、打掃、工作、運動,即使什么都不做也很舒服,這里承載了他大概 70% 的生
活。
需要解決原廚房狹窄的問題,把占用一定空間的衛生間門移到原本過道的衣帽間的衛生間,把廚房空的操作臺擴大,而冰箱、烤箱和紅酒柜等設計在過道上,這樣廚房的空間也通透明亮起來,又解決了衛生間門口設計的問題。
主 臥
MASTER ROOM
卸下疲憊,為身心停留30%片刻
主臥用落地玻璃窗將原先的陽臺封起來,然后把陽臺給打掉,讓陽臺的空間劃分到主臥里,擴大了整個主臥空間。

在這個夏天,男主Danny在這里彈著他喜歡的尤克里里,吃著他喜歡的料理,90后的獨居生活,優雅精煉、低調簡潔、不炫耀不驕奢,只享受生活原本的美好 !
項目名稱 | 天譽花園2期
項目地址 | 廣州 · 天河區
風格傾向丨現代簡約風格
項目面積 | 90 ㎡
設計機構 | 星藝裝飾 · 設計九組
主案設計師 | 莫其創