149㎡極簡生活,冷艷與治愈糅合交錯,回溯空間藝術的純粹本源
2022-02-14 12:00:00
主案設計丨侯立原
項目名稱丨暖冬
項目面積丨149㎡
風格傾向丨現代簡約
項目地址丨海濱花園
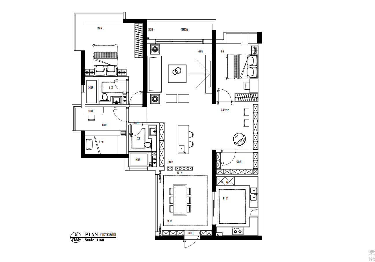
(平面布置圖)
客廳
Living Room
客廳是經典的黑白灰設計,極簡風格盡顯高級大氣,柔軟舒適的絨面深色沙發搭配拼接圓桌,簡約精致又賦予時尚魅力,整體上僅用色彩的沖擊與家具的質感展現設計的精妙。
帶有獨特設計的紅椅像把火點亮了整個空間,小小的點綴卻也是獨具匠心的設計。窗邊的落地暖黃燈光照亮了這大面積深色的環境,似冬日的暖陽給人溫暖,獨自發光發熱。
用餐區
Dining area

餐廳部分清新明亮,大面積的百葉窗與白色儲物柜在視覺上延伸用餐區的空間,黑白相間的桌椅虛實結合,讓整個空間有了沉穩的底色,像是化雪后清晨,迸發勃勃生機。
廚房
Kitchen
廚房與用餐區相連接,白色櫥柜底部做了留空設計,地面的水漬不容易腐蝕櫥柜,并且方便清潔打掃。開闊的移動門就算家中人多也不會擁擠,可以盡情享受工作后相聚的歡樂時光。
隱形門設計
Stealth door design
值得一提的是,整個設計都采用了大量的隱形門設計,利用空間的錯落造成視覺上落差,既不會顯得突兀也豐富了整體的空間層次。
吧臺
Bar
從客廳也能看到整個吧臺的全貌,靠近屏風的位置增添了洗手池,背靠整面的酒水柜子,不管是獨自在家還是友人,家人重聚都能感受到這個家帶來的幸福感。
學習區
Study area
長輩房與收納間門口沒有浪費,設計成孩子自己的學習玩耍區,整排的儲物柜滿足孩子的收納需求,開放的區域也能體驗溫馨的親子時光。
臥室
Bedroom
臥室中的空間感就顯得格外靈動,延申的窗臺能感受每天日出日落。生活需要儀式感,而家的裝修,是我們度過余下幾十年的基礎,在這里,想要感受夏日的清涼還是冬季的暖陽都是極致舒適的體驗。